

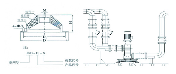
JGD型橡胶剪切隔振器是由合成橡胶和内置金属件组成,经过硫化成圆锥体,橡胶部分受剪切力、具有较大的变形范围和较低的固有频率。
工作温度范围在-5oC--+50oC,温度变化时,刚度也有所变化;阻尼比C/C0>0.07。
我厂生产的JGD型橡胶剪切隔振器选用优质天然橡胶,云象**标1#天然橡胶,含胶量达到46%左右,具有良好的减震和降噪效果。
JGD橡胶剪切橡胶减震器尺寸图:


直供水设备使用DN25橡胶膨胀节,以确保水流在管道中顺畅流动,同时还能有效地防止因温度变化引起的管道位移。 在直供水设备中,DN25橡胶膨胀节起着举...
变频无负压供水设备中的DN32橡胶膨胀节是一种重要的部件,它能够有效地吸收和消除由于温度变化而产生的膨胀和收缩,从而保证了供水设备的稳定运行。...
优质供水设备中的DN150橡胶膨胀节具有独特的设计和卓越的性能,可以有效地吸收由于温度变化引起的管道伸缩,确保供水的稳定性和持续性。此外,该膨...
无压供水设备中的DN200橡胶膨胀节是供水系统中不可或缺的一部分。它具有优良的弹性、耐腐蚀性、耐高温性和耐老化性,能够有效地吸收和减缓供水系统...
高压增压泵使用耐高压橡胶膨胀节,是一种专门为高压流体系统设计的弹性元件。它具有优良的耐压性能和良好的弹性,能够有效地吸收和补偿高压流体系...
防排水系统是建筑物和基础设施的重要组成部分,其作用是防止水害并保持排水系统的正常运行。在这个系统中,橡胶膨胀节是一个关键的部件,其DN200规...
室外排水系统是城市基础设施的重要组成部分,它负责收集和处理城市中的污水和废水。为了确保排水系统的正常运行,需要使用各种管道和配件来连接和...
酒店给排水系统中的变径橡胶膨胀节是一种关键的部件,它对于保证系统的正常运行和延长管道使用寿命具有重要的作用。 变径橡胶膨胀节通常由橡胶材料...
地下室给排水系统中的丝扣橡胶膨胀节是一个关键部件,它的作用是连接管道并补偿因温度变化、地基沉降等因素引起的管道变形。这种膨胀节具有耐腐蚀...
自来水加压泵中的16公斤橡胶膨胀节是一个关键部件,它对于确保自来水供应的稳定性和可靠性起着至关重要的作用。这个橡胶膨胀节具有优良的耐腐蚀性...
友情链接
橡胶膨胀节|橡胶膨胀节批发价格-上海松夏减震器有公司官方网站
联系电话:021-64535755 24小时服务电话:18317127770 地址:上海市宝山区城银路525弄